Leiligheter Sannan
På oppdrag for Sannan Bolig AS har PRAKSIS arkitketer prosjektert nye leilighetsbygg innenfor tre boligregulert tomter på Sannan, Steinkjer.
Dette er område B12-4, B13-1 og B13-2.
- B12-4 skal bestå av 12 leiligheter fordelt på 2 etasjer.
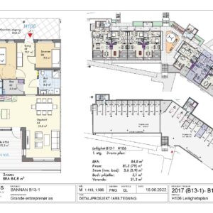
- B13-1 skal bestå av 21 leiligheter fordelt på 3 etasjer + parkeringskjeller.
- B13-2 skal bestå av 14 leiligheter fordelt på 2 etasjer + parkeringskjeller.
Leilighetsstørrelser varierende fra 80 – 102 m2 P-rom (3- og 4-roms). Alle bygg har trapp og løfteplattform for tilkomst til øvre etasjer.
Det skal opparbeides felles utomhus-områder for parkering, lek og uteopphold tilknyttet alle utbyggingstrinnene. Inndelingen og utformingen av uteområdet beriker alle beboere i nærområdet.
Disse nye byggetrinnene viderefører det arkitektoniske uttrykket som allerede ble etablert i utbyggingsområdet med de første byggetrinnene. Materialbruk, formgrep og terrengtilpasning har mye til felles med de første byggene som allerede er etablert i området.
Leilighetene er planlagt oppført i tradisjonelt bindingsverk i kombinasjon med bærende konstruksjoner i stål og betong. Teglforblending i kombinasjon med trekledning som fasadematerialer. Store vindusflater og balkonger til alle leiligheter mot sør og sørvest.
Leilighetsbyggene får eget vannbårent varmeanlegg.
Utførende Totalentreprenør er Grande Entreprenør.
Samarbeidende tekniske rådgivere er SWECO og underleverandører.
AF3D har laget alle 3D-illustrasjoner.

Sted Sannan, Steinkjer
Prosjekttype Boligprosjekt med varierende leilighetstyper
Byggherre Sannan Bolig AS
År 2022
Samarbeidspartnere Grande entreprenør AS og SWECO
3D-illustratør AF3D

